VILLA INDIPENDENTE IN VENDITA AD OLEGGIO
  • €395.000

Panoramica

ID Immobile: T603
  • Villa
  • Tipo
  • 4
  • Camere da letto
  • 2
  • Bagni
  • Box Doppio
  • Garage
  • 348 m²
  • Superficie

Descrizione

A Oleggio, in una zona tranquilla e residenziale, proponiamo una villa indipendente su quattro lati, completamente ristrutturata nel 2022, ideale per chi cerca una casa pronta da vivere, spaziosa e versatile.

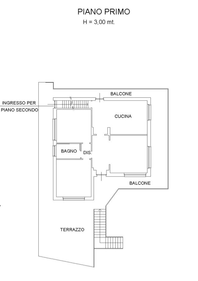
La proprietà si sviluppa su due livelli ben distinti. Al piano superiore troviamo un ampio trilocale, luminoso e accogliente, già rifinito e abitabile da subito. Gli ambienti sono ben distribuiti, pensati per garantire comfort e funzionalità nella vita quotidiana.

Al piano terra si apre una seconda unità, completa e autonoma, composta da una cucina abitabile, un bagno, due camere da letto e un pratico ripostiglio. Uno spazio perfetto per accogliere un familiare, creare una soluzione bifamiliare o semplicemente ampliare le possibilità d’uso dell’abitazione, anche come studio o zona ospiti.

La villa è circondata da un giardino curato, dove poter trascorrere momenti di relax all’aperto, far giocare i bambini o coltivare le proprie passioni. Il terrazzo è ampio e ben esposto, perfetto per pranzi all’aperto o cene in compagnia. Completano la proprietà un box auto e un posto auto coperto esterno.

Questa casa offre molto più di quattro mura: è una soluzione solida, ben tenuta, pronta ad accogliere nuove storie. Perfetta per chi cerca indipendenza, spazio e la libertà di vivere ogni ambiente secondo le proprie esigenze.

Prezzo: 395.000 €
Classe Energetica: ” “

Se ti sei già innamorato di questa casa, ma temi che la vendita del tuo immobile possa essere un ostacolo, non temere! I tempi medi di una vendita con SIM IMMOBILIARE sono di 58 giorni.
Portati avanti e scopri il valore della tua casa copiando questo link nella barra di ricerca https://www.venderecasanovara.it
Ti ricordiamo che SIM Immobiliare non è un’agenzia come le altre.
A differenza delle agenzie tradizionali noi non ci limitiamo solo a mostrarti le case che abbiamo a disposizione, ma vogliamo aiutarti a trovare la casa ideale, per farti risparmiare tempo e ridurti lo stress e proprio per questo, prima di farti vedere la casa, ti faremo una breve “intervista”, così potremmo capire insieme se questa sia la soluzione giusta per te!
Questo ti permetterà di evitare inutili giri a vuoto e, nel caso in cui la casa non rispondesse alle tue esigenze, inseriremo la tua richiesta in una lista con cui verrai avvisato con la massima priorità non appena rientrerà la casa dei tuoi sogni!
SIM Immobiliare, leader a Novara per vendere e comprare casa!

Video

Virtual Tour 360°

  • Indirizzo: Via Novara snc
  • Città: Oleggio
  • Codice Postale: 28047
  • Area: Centro

Dettagli

  • ID Immobile T603
  • Prezzo €395.000
  • Dimensioni proprietà 348 m²
  • Camere da letto 4
  • Bagni 2
  • Garage Box Doppio
  • Anno di costruzione 2022
  • Tipo Villa
  • Contratto Vendita
  • Piano 2
  • Riscaldamento Autonomo Metano
  • Stato immobile Ottimo Stato

Planimetrie

Classe Energetica

  • Classe energetica: D
  • Indice globale di rendimento energetico: 128.28 kWh/mqa
  • A+
  • A
  • B
  • C
  • 128.28 kWh/mqa | Classe energetica D
    D
  • E
  • F
  • G
  • H

Annunci Simili

Calcolo mutuo