Villa in Vendita a Casaleggio Novara
- €298.000
Panoramica
- Villa
- 4
- 3
- Box Singolo
- 280 m²
Descrizione
Casaleggio – Prestigiosa villa singola con giardino, ideale anche per due famiglie.
Sei alla ricerca di un rifugio elegante, accogliente e immerso nella tranquillità, dove la tua famiglia possa sentirsi davvero a casa?
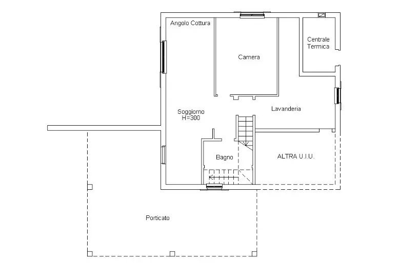
Lasciati conquistare da questa esclusiva villa singola a Casaleggio: un angolo di pace a pochi minuti da Novara, dal centro commerciale di Vicolungo e dall’autostrada A26. Al piano terra, ti accoglie una soluzione pensata anche come seconda abitazione, perfetta per ospiti, genitori o per chi desidera uno spazio indipendente. Qui trovi un soggiorno con angolo cottura, una camera da letto, un bagno privato e un incantevole porticato: il luogo ideale per pranzi estivi, serate in compagnia o semplicemente per goderti il verde.
Salendo al piano nobile, si apre un ampio soggiorno con camino, perfetto per i momenti di relax in famiglia.
L’ambiente è completato da una spaziosa cucina separata, ideale per chi ama cucinare e condividere i pasti in compagnia. La zona notte offre tre camere da letto generose, di cui una matrimoniale con bagno privato, oltre a un secondo bagno.
Il grande giardino, curato e ricco di potenzialità, offre lo spazio ideale per costruire una piscina, realizzare una zona relax o far giocare i bambini in totale sicurezza. Completano la proprietà una grande autorimessa e un cortile riservato, perfetti per garantire comfort, privacy e la possibilità di vivere appieno anche gli spazi esterni.
Il lusso dello spazio. Il privilegio della tranquillità. Il vantaggio di un prezzo accessibile.
A pochi minuti da Novara, scopri un’occasione unica: una villa indipendente circondata dal verde, dove ogni ambiente è pensato per offrire respiro, libertà e qualità di vita. Qui non sei costretto a scegliere tra comodità e tranquillità: puoi avere entrambi.
Grandi spazi interni, un giardino che sembra un parco privato, privacy assoluta… e tutto questo a un prezzo sorprendentemente vantaggioso rispetto ad altre zone della provincia.
Se stai cercando una casa che dia valore al tuo investimento e benessere alla tua famiglia, questa è la risposta.
Chiamaci subito allo 0321331737 e fissa un appuntamento con un consulente che si prenderà cura di te! Se ti sei già innamorato di questa casa, ma temi che la vendita del tuo immobile possa essere un ostacolo, non temere! I tempi medi di una vendita con SIM IMMOBILIARE sono di 58 giorni. Portati avanti e scopri il valore della tua casa copiando questo link nella barra di ricerca https://www.venderecasanovara.it Ti ricordiamo che SIM Immobiliare non è un’agenzia come le altre. A differenza delle agenzie tradizionali noi non ci limitiamo solo a mostrarti le case che abbiamo a disposizione, ma vogliamo aiutarti a trovare la casa ideale, per farti risparmiare tempo e ridurti lo stress e proprio per questo, prima di farti vedere la casa, ti faremo una breve “intervista”, così potremmo capire insieme se questa sia la soluzione giusta per te! Questo ti permetterà di evitare inutili giri a vuoto e, nel caso in cui la casa non rispondesse alle tue esigenze, inseriremo la tua richiesta in una lista con cui verrai avvisato con la massima priorità non appena rientrerà la casa dei tuoi sogni! SIM Immobiliare, leader a Novara per vendere e comprare casa!
Indirizzo
Apri su Google Maps-
Indirizzo: Via Madello Vitta SNC
-
Città: Casaleggio Novara
-
Codice Postale: 28060
Dettagli
-
ID Immobile T435
-
Prezzo €298.000
-
Dimensioni proprietà 280 m²
-
Camere da letto 4
-
Bagni 3
-
Garage Box Singolo
-
Anno di costruzione 1970
-
Tipo Villa
-
Contratto Vendita
-
Piano T
-
Riscaldamento Autonomo Metano
-
Stato immobile Ottimo Stato
Classe Energetica
-
Classe energetica: F
-
Indice globale di rendimento energetico: 329.97 kWh/mqa
- A+
- A
- B
- C
- D
- E
-
329.97 kWh/mqa | Classe energetica FF
- G
- H
Calcolo mutuo
-
Acconto
-
Importo Totale
-
Totale rata mensile


