Villa in vendita a Cameri
- €359.000
Panoramica
- Villa
- 6
- 4
- Box Triplo
- 344 m²
Descrizione
Una villa, due abitazioni… un solo grande sogno di famiglia.
In una zona tranquilla, riservata e vicinissima a Novara, ti presentiamo una villa indipendente bifamiliare di 344 mq, perfetta per chi desidera ampi spazi, riservatezza e una casa che possa accogliere più generazioni o trasformarsi in un grande progetto abitativo su misura.
L’intera proprietà è circondata da un giardino curato e rigoglioso, completo di orto privato e area esterna attrezzata per vivere ogni stagione all’aperto.
Gli spazi interni sono stati ristrutturati con cura nei primi anni 2000, mantenendo un’atmosfera accogliente e funzionale, ma con un’impronta moderna che si percepisce nella distribuzione e nella vivibilità degli ambienti.
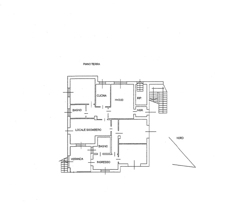
• PRIMO PIANO: appena varcata la soglia, si viene accolti da un ingresso ampio e arioso che conduce a un salottino perfetto come zona lettura o area relax. La cucina abitabile è spaziosa, luminosa e ben organizzata. La camera matrimoniale è generosa nelle dimensioni, silenziosa e riservata. Il primo bagno con vasca è finestrato, comodo e pratico per l’uso quotidiano. A completare il piano, un locale di sgombero perfetto come lavanderia o dispensa, un secondo bagno di servizio e una veranda, che si apre sull’esterno e invita a vivere la casa anche fuori.
Uscendo dalla veranda si accede a una zona cementata attrezzata con tavolo da pranzo, barbecue in muratura, solarium e un giardino fiorito che trasforma ogni momento in un piccolo angolo di libertà.
• PIANO SUPERIORE: accessibile da una scala indipendente, accoglie con un ampio ingresso che si apre su un soggiorno doppio con camino e zona pranzo, perfetto per momenti in famiglia o serate con amici. La cucina abitabile è grande, funzionale e affacciata sulla veranda, uno spazio in più da sfruttare tutto l’anno. Lo studio, luminoso e riservato, è ideale per lo smart working o per i momenti di lettura. Completano la zona notte una camera singola di ottima metratura, due bagni eleganti (uno con vasca, uno con doccia) e una grande camera matrimoniale, rifinita con gusto e ben esposta.
All’esterno, un balcone angolare corre lungo tutto il perimetro della casa, regalando luce naturale e affacci suggestivi sul giardino circostante.
Completano la proprietà:
• 3 box auto, situati all’interno del cortile, facilmente accessibili e dotati di ampi spazi di manovra. Perfetti non solo per parcheggiare comodamente le vetture di tutta la famiglia, ma anche per riporre biciclette, moto, attrezzi da lavoro, materiali per il giardinaggio ecc.
• In un angolo riservato trova spazio anche un orto personale già attrezzato, curato e produttivo, ideale per coltivare verdure di stagione, erbe aromatiche e fiori.
Questa villa è perfetta per chi cerca una soluzione bifamiliare indipendente, per vivere vicino ai propri cari pur mantenendo la propria autonomia. Oppure per chi sogna una casa unica su due livelli, dove ogni spazio può essere personalizzato secondo il proprio stile di vita.
Contattaci per scoprire ogni dettaglio di questa splendida villa e lasciati ispirare dal potenziale che può offrirti!
C.E: F, ipe; 133,12
Se ti sei già innamorato di questa casa, ma temi che la vendita del tuo immobile possa essere un ostacolo, non temere! I tempi medi di una vendita con SIM IMMOBILIARE sono di 58 giorni.
Portati avanti e scopri il valore della tua casa copiando questo link nella barra di ricerca https://www.venderecasanovara.it
Ti ricordiamo che SIM Immobiliare non è un’agenzia come le altre.
A differenza delle agenzie tradizionali noi non ci limitiamo solo a mostrarti le case che abbiamo a disposizione, ma vogliamo aiutarti a trovare la casa ideale, per farti risparmiare tempo e ridurti lo stress e proprio per questo, prima di farti vedere la casa, ti faremo una breve “intervista”, così potremmo capire insieme se questa sia la soluzione giusta per te!
Questo ti permetterà di evitare inutili giri a vuoto e, nel caso in cui la casa non rispondesse alle tue esigenze, inseriremo la tua richiesta in una lista con cui verrai avvisato con la massima priorità non appena rientrerà la casa dei tuoi sogni!
SIM Immobiliare, leader a Novara per vendere e comprare casa!
Virtual Tour 360°
Indirizzo
Apri su Google Maps-
Indirizzo: Str. Serponte, snc
-
Città: Cameri
-
Codice Postale: 28062
Dettagli
-
ID Immobile T801
-
Prezzo €359.000
-
Dimensioni proprietà 344 m²
-
Camere da letto 6
-
Bagni 4
-
Garage Box Triplo
-
Tipo Villa
-
Contratto Vendita
-
Piano 1
-
Riscaldamento Autonomo GPL
-
Stato immobile Buono
Classe Energetica
-
Classe energetica: F
-
Indice globale di rendimento energetico: 0 kWh/mqa
- A+
- A
- B
- C
- D
- E
- 0 kWh/mqa | Classe energetica FF
- G
- H
Annunci Simili
Calcolo mutuo
-
Acconto
-
Importo Totale
-
Totale rata mensile


