VILLA BIFAMILIARE IN VENDITA A CAMERI
- €289.000
Panoramica
- Villa
- 9
- 3
- 505 m²
Descrizione
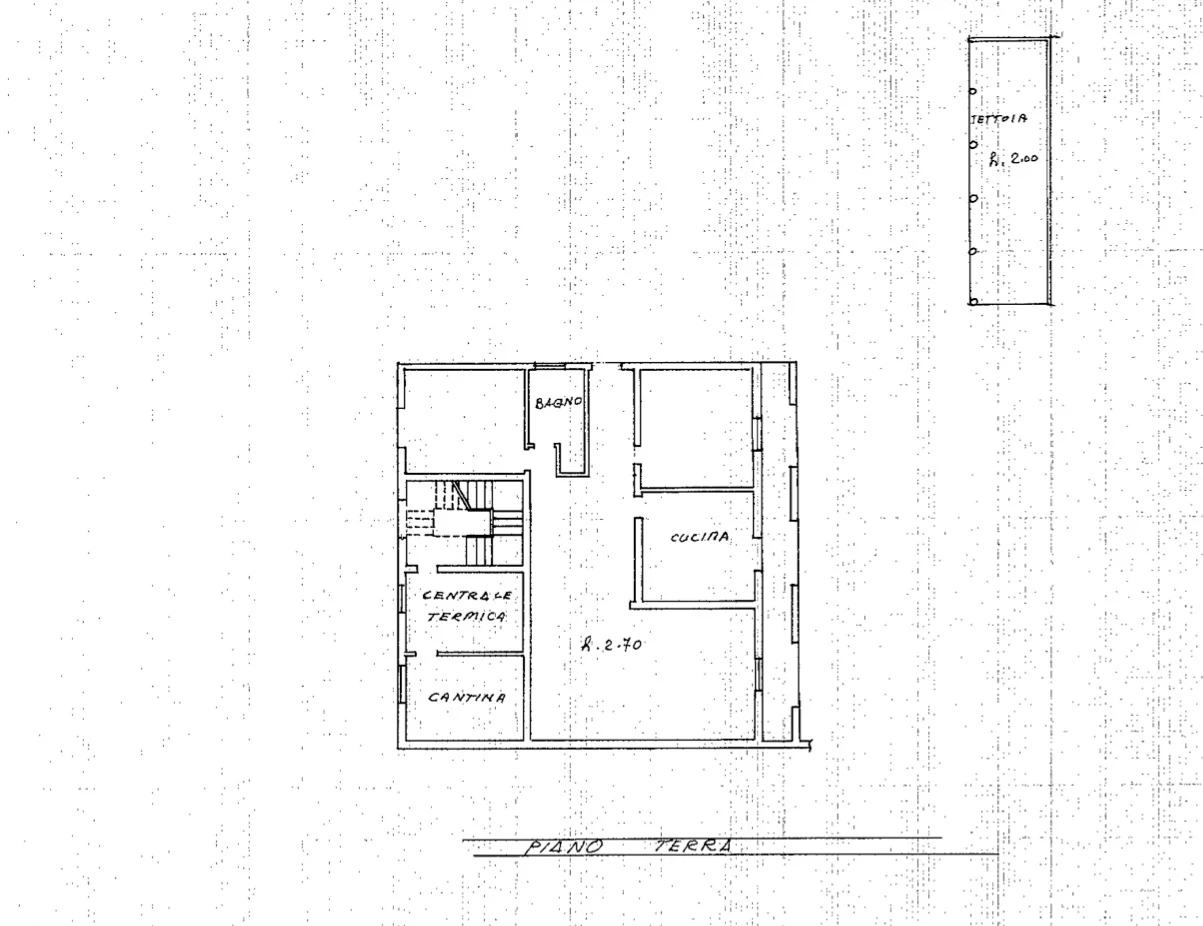
Nel cuore di Cameri, in una zona residenziale tranquilla e ben collegata, proponiamo in vendita una villa indipendente di ampia metratura, disposta su tre livelli abitativi, circondata da un giardino privato e dotata di cantina al piano seminterrato.
La proprietà, pur necessitando di una ristrutturazione, si presenta come una solida struttura d’epoca con grande potenziale, sia per una riorganizzazione in un’unica grande residenza familiare, sia per essere mantenuta come trifamiliare grazie alla sua attuale suddivisione interna.
La distribuzione degli spazi è la seguente:
• Al piano terra si trova un appartamento trilocale, composto da un ingresso, soggiorno, cucina abitabile, due camere da letto e un bagno. Gli ambienti sono ampi e ben illuminati, con affacci diretti sul giardino circostante.
• Al primo piano si sviluppa un appartamento quadrilocale, ideale per una famiglia più numerosa, composto da un’ampia zona giorno, cucina separata, tre camere da letto e un bagno. Le finestre offrono viste aperte sul verde del giardino e buona esposizione alla luce naturale.
• Il secondo piano ospita un altro appartamento trilocale, anch’esso dotato di soggiorno, cucina, due camere da letto e bagno. Gli ambienti mansardati conferiscono un tocco accogliente, e con una ristrutturazione adeguata possono diventare spazi unici e caratteristici.
Completa la proprietà una cantina al piano seminterrato, ideale come spazio di servizio, lavanderia o per creare una taverna. Il giardino privato che circonda la villa offre ampie possibilità: un’area relax, un orto, uno spazio giochi o una zona barbecue.
Questa villa rappresenta una rara opportunità per chi desidera intraprendere un progetto di ristrutturazione personalizzato: perfetta per più famiglie, per una grande abitazione singola o anche come investimento da mettere a reddito.
La posizione, la metratura e la suddivisione interna rendono questo immobile estremamente versatile, in un contesto tranquillo ma comodo a tutti i principali servizi di Cameri.
Prezzo: € 289.000
Chiamaci subito allo 0321 331737 e fissa un appuntamento con un consulente che si prenderà cura di te!
Se ti sei già innamorato di questa casa, ma temi che la vendita del tuo immobile possa essere un ostacolo, non temere! I tempi medi di una vendita con SIM IMMOBILIARE sono di 58 giorni. Portati avanti e scopri il valore della tua casa copiando questo link nella barra di ricerca: https://www.venderecasanovara.it.
Ti ricordiamo che SIM Immobiliare non è un’agenzia come le altre. A differenza delle agenzie tradizionali, non ci limitiamo a mostrarti le soluzioni disponibili, ma ci impegniamo ad aiutarti davvero a trovare la casa giusta per te, con l’obiettivo di farti risparmiare tempo, evitarti inutili stress e accompagnarti in un percorso sereno e consapevole.
Per questo motivo, prima ancora di organizzare una visita, ti dedicheremo una breve intervista conoscitiva: un momento utile per capire insieme se l’immobile che ti interessa è davvero in linea con le tue esigenze. E se così non fosse, nessun problema: inseriremo la tua richiesta nel nostro database riservato e sarai tra i primi ad essere contattato non appena entrerà una nuova proposta in linea con ciò che stai cercando.
SIM Immobiliare, leader a Novara per vendere e comprare casa.
Indirizzo
Apri su Google Maps-
Indirizzo: via ticino snc
-
Città: Cameri
-
Codice Postale: 28062
Dettagli
-
ID Immobile T055
-
Prezzo €289.000
-
Dimensioni proprietà 505 m²
-
Camere da letto 9
-
Bagni 3
-
Anno di costruzione 1970
-
Tipo Villa
-
Contratto Vendita
-
Piano 3
-
Stato immobile Da Ristrutturare
Classe Energetica
-
Classe energetica: F
-
Indice globale di rendimento energetico: 140.21 kWh/mqa
- A+
- A
- B
- C
- D
- E
- 140.21 kWh/mqa | Classe energetica FF
- G
- H
Annunci Simili
Calcolo mutuo
-
Acconto
-
Importo Totale
-
Totale rata mensile


