San Martino – magazzino 160000 UT001
- €160.000
Panoramica
ID Immobile: UT001
- Ufficio
- 0
- 2
- 233 m²
Descrizione
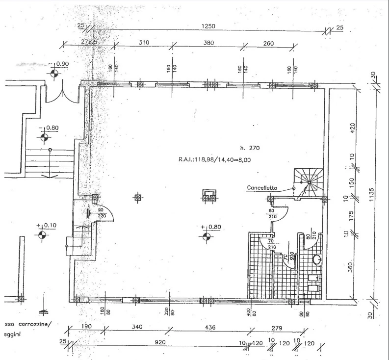
San Martino vicinanze corso torino, in recente palazzina appartamento uso ufficio al piano rialzato di mq 158 composto da unico locale e bagno + locale archivio al piano seminterrato di mq 80 collegati da scala interna. Poss box. € 160.000 +iva Classe energetica C epi 33,1091 SIM IMMOBILIARE tante case una sola agenzia!!! Visita il nostro sito www.simimmobiliare.it Prenota la tua visita anche allo 03211590005
Indirizzo
Apri su Google Maps-
Indirizzo: Via Pellegrini snc
-
Città: Novara
-
Codice Postale: 28100
-
Area: San Martino
Dettagli
-
ID Immobile UT001
-
Prezzo €160.000
-
Dimensioni proprietà 233 m²
-
Camera da letto 0
-
Bagni 2
-
Tipo Ufficio
-
Contratto Vendita
-
Piano I
-
Spese condominiali €1.740
-
Riscaldamento Centr.Metano
-
Stato immobile Buono
Classe Energetica
-
Classe energetica: C
-
Indice globale di rendimento energetico: 33.1091 kWh/mca
- A+
- A
- B
-
33.1091 kWh/mca | Classe energetica CC
- D
- E
- F
- G
- H
Annunci Simili
Ufficio in vendita in centro storico a Novara
Baluardo Quintino Sella snc, Centro storico, Novara DettagliCalcolo mutuo
Mensile
-
Acconto
-
Importo Totale
-
Totale rata mensile


