NEGOZIO IN VENDITA A CALTIGNAGA
- €198.000
Panoramica
- Negozio
- 0
- 6
- Posto auto scoperto
- 1083 m²
Descrizione
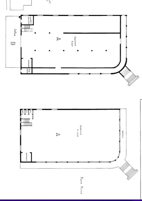
GRANDE NEGOZIO IN POSIZIONE STRATEGICA – CALTIGNAGA Prossima apertura uscita tangenziale – Visibilità assicurata! Affittasi ampio negozio con grandi vetrine fronte strada in posizione altamente strategica a Caltignaga. L’immobile, ideale per negozio, supermercato, palestra, ristorante o altra attività commerciale, si trova in prossimità della nuova uscita della tangenziale, garantendo un fortissimo passaggio veicolare e massima visibilità. Caratteristiche principali:
• Ampia metratura su due livelli, con spazioso sotto negozio
• Vetrine su strada per esposizione e luminosità
• Parcheggio esclusivo e comodo per i clienti
• Zona facilmente accessibile e ben collegata
• Contesto dinamico e in forte sviluppo Un’occasione perfetta per far crescere la tua attività in una location moderna, comoda e ben servita. Contattaci subito per maggiori informazioni e per fissare una visita!
€ 198000 CL. EN G 232,4
Se ti sei già innamorato di questa casa, ma temi che la vendita del tuo immobile possa essere un ostacolo, non temere! I tempi medi di una vendita con SIM IMMOBILIARE sono di 58 giorni. Portati avanti e scopri il valore della tua casa copiando questo link nella barra di ricerca https://www.venderecasanovara.it Ti ricordiamo che SIM Immobiliare non è un’agenzia come le altre. A differenza delle agenzie tradizionali noi non ci limitiamo solo a mostrarti le case che abbiamo a disposizione, ma vogliamo aiutarti a trovare la casa ideale, per farti risparmiare tempo e ridurti lo stress e proprio per questo, prima di farti vedere la casa, ti faremo una breve “intervista”, così potremmo capire insieme se questa sia la soluzione giusta per te! Questo ti permetterà di evitare inutili giri a vuoto e, nel caso in cui la casa non rispondesse alle tue esigenze, inseriremo la tua richiesta in una lista con cui verrai avvisato con la massima priorità non appena rientrerà la casa dei tuoi sogni! SIM Immobiliare, leader a Novara per vendere e comprare casa!
Indirizzo
Apri su Google Maps-
Indirizzo: STRADA PROVINCIALE SNC
-
Città: Caltignaga
-
Codice Postale: 28010
Dettagli
-
ID Immobile NT021
-
Prezzo €198.000
-
Dimensioni proprietà 1083 m²
-
Camera da letto 0
-
Bagni 6
-
Garage Posto auto scoperto
-
Anno di costruzione 1983
-
Tipo Negozio
-
Contratto Vendita
-
Piano r
-
Riscaldamento Autonomo Gas
-
Stato immobile Discreto
Classe Energetica
-
Classe energetica: G
-
Indice globale di rendimento energetico: 232.4 kWh/mca
- A+
- A
- B
- C
- D
- E
- F
- 232.4 kWh/mca | Classe energetica GG
- H
Calcolo mutuo
-
Acconto
-
Importo Totale
-
Totale rata mensile

