NEGOZIO IN AFFITTO A TRINO
- €550
Panoramica
- Negozio
- 1
- 1
- Nessuno
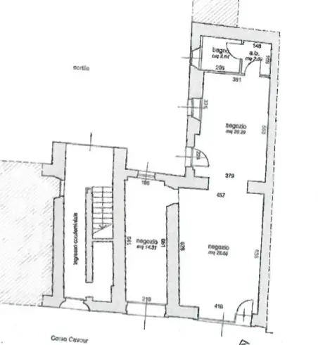
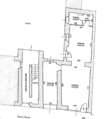
- 93 m²
Descrizione
Stai cercando il posto giusto per far nascere (o crescere) la tua attività? Questo locale commerciale in affitto in Corso Cavour a Trino ti offre tutto quello che serve per partire con il piede giusto.
Siamo nella via principale del paese, con due ampie vetrine su strada che garantiscono grande visibilità e passaggio: l’ideale per attirare l’attenzione dei clienti fin dal primo giorno.
Il locale è stato appena ristrutturato, quindi potrai concentrarti solo sul tuo business, senza perdere tempo o budget in lavori. Internamente offre 93 mq ben distribuiti, facilmente adattabili a diverse tipologie di attività: retail, ufficio, studio professionale o spazio espositivo.
È presente anche un bagno per garantire comfort e funzionalità.
Classe energetica “G” EPgl,nren 380,55 kWh/m2
Chiamaci allo 0321 331737 e fissa il tuo appuntamento. Contattaci anche con WhatsApp al 333 6071181. Guarda il nostro sito www.simimmobiliare.it e scegli la tua casa. Puoi scriverci anche sui nostri account di Facebook e Instagram. Sim Immobiliare, leader a Novara per vendere e comprare casa!
Indirizzo
Apri su Google Maps-
Indirizzo: Corso Cavour, snc
-
Città: Trino
-
Codice Postale: 13039
-
Area: Robella
Dettagli
-
ID Immobile NA102
-
Prezzo €550
-
Dimensioni proprietà 93 m²
-
Camera da letto 1
-
Bagno 1
-
Garage Nessuno
-
Tipo Negozio
-
Contratto Affitto
-
Piano T
-
Riscaldamento Autonomo Metano
-
Stato immobile Ristrutturato
Caratteristiche
Classe Energetica
-
Classe energetica: G
-
Indice globale di rendimento energetico: 380.55 kWh/mca
- A+
- A
- B
- C
- D
- E
- F
- 380.55 kWh/mca | Classe energetica GG
- H

