BILOCALE IN AFFITTO A TRINO
- €450
Panoramica
- Appartamento
- 1
- 1
- Nessuno
- 48 m²
Descrizione
Hai voglia di iniziare una nuova fase della tua vita, con uno spazio tutto tuo dove sentirti finalmente indipendente? Questo appartamento in affitto è perfetto per te.
Ci troviamo in Corso Cavour, nel pieno centro di Trino: qui puoi dimenticare l’auto, perché tutto ciò che ti serve è a pochi passi. L’appartamento si trova al secondo piano, è appena ristrutturato e pronto da vivere, senza stress e senza lavori da fare.
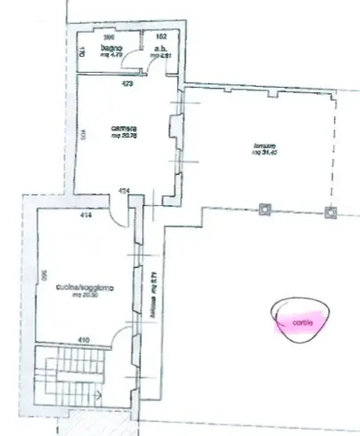
È composto da soggiorno con cucina, camera da letto, bagno, un balcone privato con affaccio interno, silenzioso e riservato e un terrazzo di ben 30 mq di proprietà esclusiva, dove potrai organizzare cene con gli amici, coltivare piante o semplicemente rilassarti al sole in totale privacy. Uno spazio prezioso che fa davvero la differenza.
L’appartamento di 49mq non è arredato ed è perfetto se vuoi costruire un ambiente che ti rappresenti davvero, scegliendo con calma ogni dettaglio. Se sei alla ricerca del tuo primo nido di indipendenza, qui hai la base ideale per farlo.
Il riscaldamento è autonomo, così potrai gestire consumi e costi in base alle tue esigenze.
Classe energetica “G” EPgl,nren 367,54 kWh/m2
Chiamaci allo 0321 331737 e fissa il tuo appuntamento. Contattaci anche con WhatsApp al 333 6071181. Guarda il nostro sito www.simimmobiliare.it e scegli la tua casa. Puoi scriverci anche sui nostri account di Facebook e Instagram. Sim Immobiliare, leader a Novara per vendere e comprare casa!
Indirizzo
Apri su Google Maps-
Indirizzo: Corso Cavour, SNC
-
Città: Trino
-
Codice Postale: 13039
Dettagli
-
ID Immobile A255
-
Prezzo €450
-
Dimensioni proprietà 48 m²
-
Camera da letto 1
-
Bagno 1
-
Garage Nessuno
-
Tipo Appartamento
-
Contratto Affitto
-
Piano 2
-
Riscaldamento Autonomo Metano
-
Stato immobile Ristrutturato
Classe Energetica
-
Classe energetica: G
-
Indice globale di rendimento energetico: 380.55 kWh/mqa
- A+
- A
- B
- C
- D
- E
- F
-
380.55 kWh/mqa | Classe energetica GG
- H

