ATTICO QUATTRO LOCALI IN VENDITA A NOVARA
- €447.000
Panoramica
- Attico
- 2
- 3
- Box Doppio
- 170 m²
Descrizione
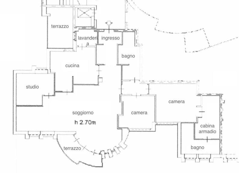
Attico di Prestigio – Novara, Prima Cerchia In una delle zone più ricercate di Novara, a due passi dal centro pedonale e affacciato sui giardini pubblici, proponiamo un attico di 170 mq pensato per chi cerca un’abitazione di classe, senza rinunciare alla comodità dei servizi e alla tranquillità di un contesto esclusivo. L’appartamento, pronto per essere abitato, si distingue per ambienti luminosi, ben distribuiti e valorizzati da ampi terrazzi che offrono la possibilità di vivere all’aria aperta in totale privacy. L’ingresso introduce a una zona giorno elegante, con soggiorno e cucina abitabile entrambi affacciati sull’esterno. La disposizione interna prevede inoltre uno studio, una camera singola, un bagno e una suite padronale con bagno privato e cabina armadio, oltre a una lavanderia comoda e funzionale. A completare la proprietà, una cantina e due posti auto, in un contesto moderno e curato nei dettagli, ideale per famiglie che cercano un’abitazione dal carattere unico, dove estetica e comfort si incontrano in perfetto equilibrio. Se ti sei già innamorato di questa casa, ma temi che la vendita del tuo immobile possa essere un ostacolo, non temere! I tempi medi di una vendita con SIM IMMOBILIARE sono di 58 giorni. Portati avanti e scopri il valore della tua casa copiando questo link nella barra di ricerca https://www.venderecasanovara.it Ti ricordiamo che SIM Immobiliare non è un’agenzia come le altre. A differenza delle agenzie tradizionali noi non ci limitiamo solo a mostrarti le case che abbiamo a disposizione, ma vogliamo aiutarti a trovare la casa ideale, per farti risparmiare tempo e ridurti lo stress e proprio per questo, prima di farti vedere la casa, ti faremo una breve “intervista”, così potremmo capire insieme se questa sia la soluzione giusta per te! Questo ti permetterà di evitare inutili giri a vuoto e, nel caso in cui la casa non rispondesse alle tue esigenze, inseriremo la tua richiesta in una lista con cui verrai avvisato con la massima priorità non appena rientrerà la casa dei tuoi sogni! SIM Immobiliare, leader a Novara per vendere e comprare casa!
Virtual Tour 360°
Indirizzo
Apri su Google Maps-
Indirizzo: via solferino snc
-
Città: Novara
-
Codice Postale: 28100
-
Area: Centro
Dettagli
-
ID Immobile T2288
-
Prezzo €447.000
-
Dimensioni proprietà 170 m²
-
Camere da letto 2
-
Bagni 3
-
Garage Box Doppio
-
Anno di costruzione 2007
-
Tipo Attico
-
Contratto Vendita
-
Piano 2
-
Spese condominiali €4.000
-
Riscaldamento Autonomo Metano
-
Stato immobile Ottimo Stato
Caratteristiche
Classe Energetica
-
Classe energetica: D
-
Indice globale di rendimento energetico: 114.44 kWh/mqa
- A+
- A
- B
- C
- 114.44 kWh/mqa | Classe energetica DD
- E
- F
- G
- H
Annunci Simili
Attico 5 locali in venita in San Francesco a Novara
Via Galileo Ferraris snc, San Francesco, Novara DettagliCalcolo mutuo
-
Acconto
-
Importo Totale
-
Totale rata mensile

